Продаются помещения с долгосрочной арендой в ЖК "Вертикаль"

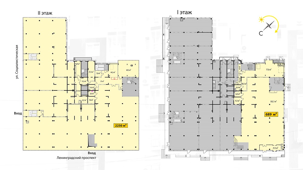
Продаются помещения с долгосрочной арендой в ЖК "Вертикаль" (18 мкрн., 20). Срок окупаемости 7 лет. Витражные окна, высота потолков 4 метра, просторная погрузочно-разгрузочная зона.

Телефон для справок: 8-964-803-27-11

  • 531-p1dbhu60dd1cak12m81vqb93t13cf4.jpg
  • 531-p1dbhu60de11081norp3d1bldd4a5.jpg
Original design by My Drupal  |  Modified by LiveAngarsk.ru team